Orgue de barbarie, trompettes et piccolos
Attention, amis français: ces plans de construction sont maintenant disponibles dans votre langue!

Traduit en français par Freddy Meyer
 


1. Orgue de barbarie 31 touches et 5 registres:

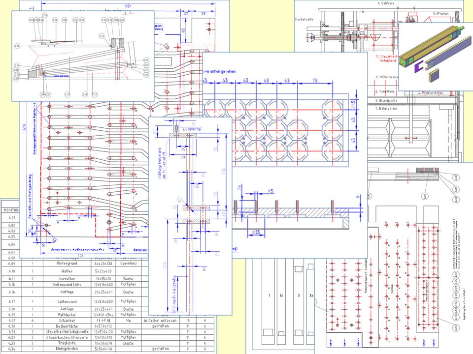
Un orgue d'une telle ampleur est un ensemble assez complexe.

Ainsi la marche à suivre est divisée en plusieurs groupes agrémentés de conseils et de plans ou photos.

 

               Les divers groupes contiennent les plans, les explications et conseils
 

 

1. Groupes de travail                                            

2. Soufflerie                                                           

3. Sommier                                                            

4. Supports de flûtes                                             

5. Soupapes                                                          

6. Orgue avec commande midi                           

7. Vilebrequin                                                        

8. Support de basses                                                                                   

9. Socle                                                                  

10. Flûtes                                                               

11. Commande midi                                             

12. Système de lecture papier et ou midi          

12.1 Couvercle                                          

12.2 Clavier                                               

 

 

              Aperçu d'une partie des plans qui sont répartis sur 99 pages en français

 

 

2. Trompettes

Il y a 5 registres de prévus dans cet orgue. Le dernier registre est optionnel et peut accueillir soit des piccolos métal ou des trompettes.

Il va de soi que le constructeur peut y mettre les flûtes de son choix.

 

Si vous avez opté pour les trompettes, vous trouverez toutes les explications par le texte et l'image dans la brochure en français à votre disposition.

 

 

3. Piccolos

Les piccolos apportent un sérieux plus aux registres d'un orgue de barbarie et sont une gageure pour le constructeur amateur. La sonorité est bien connue sur les orgues du nord de l'Allemagne.
Le son très puissant fait penser à un sifflet de locomotive.
En rapport avec l'attaque de l'air, cette flûte rappelle une flûte de pan.

 

 

 

 

Tarifs (€):

Plans de construction Pages Port gratuit
Orgue de barbarie 31 touches et 5 registres 190 125
Trompettes 39 18
Piccolos 20 36

Offres spéciales pour achat groupé:

Plan de construction + Trompettes + Piccolos + Trompettes
+ Piccolos
Economie
Orgue 135     8
Orgue   150   11
Orgue     160 19
      48 6

Règlement uniquement par paypal  à l'adresse suivante:
 

 

Besucherzaehler
 neue Besucher seit 23.03.2015